До/После: преобразили гостиную до неузнаваемости
08 сентября 2024
К нам обратилась клиентка Марина из Красногорского района Московской области с просьбой организовать жилое пространство в стиле неоклассика в её гостиной.
Мы приехали на объект, чтобы ознакомиться с помещением и понять, как лучше всего реализовать задумку.
Сегодня мы открываем специальную рубрику, в которой будем делиться с вами удивительными историями преображения пространств. В каждом таком выпуске мы будем рассказывать о проекте от первой встречи с клиентом до завершения работ.По замыслу нашей заказчицы и её интерьерного дизайнера, гостиная должна быть грамотно и функционально зонирована, включая отдельные зоны для отдыха и красивую стенку. Для заказчицы также было важно создать пространство «под себя» - удобное и комфортное во всех отношениях. Наша команда с энтузиазмом приступила к проектированию в тесном сотрудничестве с заказчицей.
Мы приехали на объект, чтобы ознакомиться с помещением и понять, как лучше всего реализовать задумку.
Сначала мы произвели детальные замеры: высоту потолков, площадь стен, расположение окон и дверей. Кстати, стены были оформлены в светлые тона, что создавало прекрасное подспорье для дальнейшей работы. На полу был уложен паркет: это добавляло уют и элегантность пространству.
Для усиления королевского шарма гостиной владельцы решили украсить одну из стен молдингами. К слову, эта деталь создала эффект глубины и объёма, а также подчеркнула изысканность стиля неоклассики. Молдинги, выполненные в светлых тонах, гармонично сочетались с общим оформлением и добавляли пространству дополнительную утончённость.
Изысканность и особый шарм, характерные для неоклассики, добавили также молдинги на потолке. Эти элегантные элементы отделки создали ощущение высоты и простора, придавая помещению архитектурную завершённость. Кроме того, изогнутые линии и аккуратные формы молдингов подчеркнули этот стиль, создавая тонкий контраст с современными элементами интерьера.
Для усиления королевского шарма гостиной владельцы решили украсить одну из стен молдингами. К слову, эта деталь создала эффект глубины и объёма, а также подчеркнула изысканность стиля неоклассики. Молдинги, выполненные в светлых тонах, гармонично сочетались с общим оформлением и добавляли пространству дополнительную утончённость.
Изысканность и особый шарм, характерные для неоклассики, добавили также молдинги на потолке. Эти элегантные элементы отделки создали ощущение высоты и простора, придавая помещению архитектурную завершённость. Кроме того, изогнутые линии и аккуратные формы молдингов подчеркнули этот стиль, создавая тонкий контраст с современными элементами интерьера.
Затем была разработана предварительная концепция дизайна, на котором мы отобразили основные элементы: расстановку мебели, выбор цветовой палитры, светодиодную подсветку внутри шкафов-витрин и другие нюансы заказа.
Стиль неоклассики предполагает использование классических форм, гармоничных пропорций, поэтому мы предложили несколько вариантов мебели, соответствующих этому стилю. Выбор пал на гарнитур «Айрис».
Обязательным условием заказчицы было наличие шкафов-витрин и это неудивительно - её любимым хобби вот уже несколько лет является коллекционирование сувениров из разных уголков мира. Для того чтобы эти уникальные предметы стали изюминкой интерьера, дизайнеры уделили особое внимание не только внешнему виду витрин, но и их функциональности, в том числе внутренней подсветке.
После этого дизайнеры создали несколько эскизов, чтобы визуализировать, как будет выглядеть финальное решение. Заказчица активно участвовала в этом процессе, внося свои пожелания относительно материалов, цветовой палитры и отделки.
Стиль неоклассики предполагает использование классических форм, гармоничных пропорций, поэтому мы предложили несколько вариантов мебели, соответствующих этому стилю. Выбор пал на гарнитур «Айрис».
Обязательным условием заказчицы было наличие шкафов-витрин и это неудивительно - её любимым хобби вот уже несколько лет является коллекционирование сувениров из разных уголков мира. Для того чтобы эти уникальные предметы стали изюминкой интерьера, дизайнеры уделили особое внимание не только внешнему виду витрин, но и их функциональности, в том числе внутренней подсветке.
После этого дизайнеры создали несколько эскизов, чтобы визуализировать, как будет выглядеть финальное решение. Заказчица активно участвовала в этом процессе, внося свои пожелания относительно материалов, цветовой палитры и отделки.
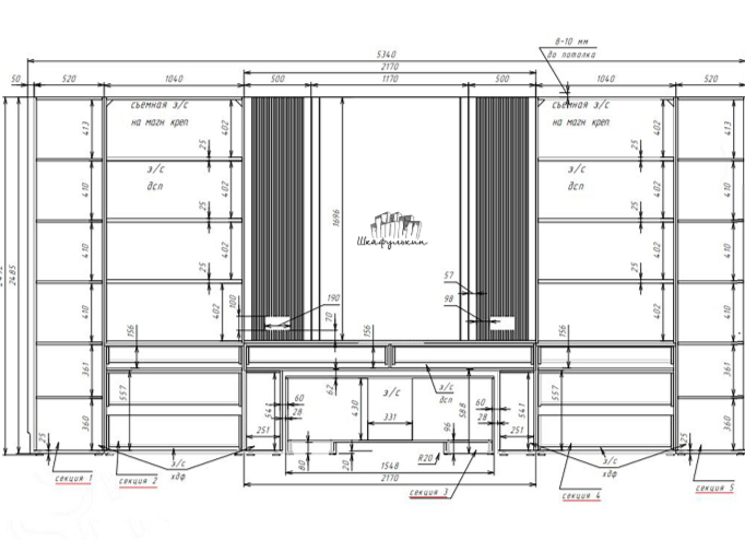
Затем мы разработали чертёж самого гарнитура, где отобразили каждую деталь с максимальной точностью. В этом чертеже были учтены все элементы: от размещения полок и выдвижных ящиков до размеров ниши для биокамина и телевизора. Мы уделили особое внимание функциональности, чтобы каждая часть гарнитура была не только эстетически привлекательной, но и удобной в использовании.
Помимо шкафов-витрин, заказчица просила предусмотреть два шкафа до потолка, которые должны были обеспечить дополнительное место для хранения и помочь в организации пространства. Мы предложили разместить два одинаковых модульных шкафа по бокам гарнитура , чтобы максимально эффективно использовать доступную площадь. Кроме того, это создало бы достаточно симметричный и гармоничный вид.
Помимо шкафов-витрин, заказчица просила предусмотреть два шкафа до потолка, которые должны были обеспечить дополнительное место для хранения и помочь в организации пространства. Мы предложили разместить два одинаковых модульных шкафа по бокам гарнитура , чтобы максимально эффективно использовать доступную площадь. Кроме того, это создало бы достаточно симметричный и гармоничный вид.
Гарнитур было решено разместить на всю стену, что позволило максимально эффективно использовать пространство и создать единый стильный элемент в интерьере гостиной. К слову, такой подход не только визуально увеличивает площадь комнаты, но и придаёт ей гармоничность и завершённость.
Такой модульный гарнитур сочетает в себе закрытые полки, шкафы и выдвижные ящики. Это даёт возможность организовывать хранение различных вещей: от книг и аксессуаров до мультимедийной техники. Стильный дизайн элементов гарнитура отлично вписался в концепцию неоклассики, а интегрированные ручки и фрезеровка на стеновой панели добавили общему мебельному «ансамблю» нотки элегантности.
Особую изюминку придали светодиодные светильники – когда мы установили подсветку, она начала мягко освещать полки, подчёркивая текстуру и цвет мебели. К слову, такой интерьерный штрих всегда создаёт уютную атмосферу, особенно в вечернее время, когда мягкий свет начинает играть на стеклянных дверцах, отражая их блеск и создавая ощущение уюта и тепла.
Такой модульный гарнитур сочетает в себе закрытые полки, шкафы и выдвижные ящики. Это даёт возможность организовывать хранение различных вещей: от книг и аксессуаров до мультимедийной техники. Стильный дизайн элементов гарнитура отлично вписался в концепцию неоклассики, а интегрированные ручки и фрезеровка на стеновой панели добавили общему мебельному «ансамблю» нотки элегантности.
Особую изюминку придали светодиодные светильники – когда мы установили подсветку, она начала мягко освещать полки, подчёркивая текстуру и цвет мебели. К слову, такой интерьерный штрих всегда создаёт уютную атмосферу, особенно в вечернее время, когда мягкий свет начинает играть на стеклянных дверцах, отражая их блеск и создавая ощущение уюта и тепла.
Для коллекции сувениров этот штрих оказался не менее важным: подсветка акцентирует внимание на деталях и особенностях каждого предмета, позволяя наслаждаться их красотой даже в полумраке. Заказчица была в восторге от того, как её любимые сувениры, собранные из разных уголков мира, «заиграли» по-новому.
Кроме того, стеклянные дверцы шкафов с эффектом тонировки добавили в мебельную композицию элемент современности и функциональности. Плюс они дают возможность видеть содержимое, не открывая дверцы, что облегчает поиск необходимых вещей и придаёт ощущение простора. Кроме того, такой подход позволяет визуально разгрузить пространство, сохраняя его лёгким и не перегруженным.
Биокамин в нише гарнитура стал органичным продолжением дизайна и добавил неповторимый шарм гостиной. Кроме того, размещение камина непосредственно в гарнитуре позволило создать единый композиционный элемент, сделав пространство более живым и привлекательным. Такая обстановка идеальна для встреч с друзьями, семейных вечеров и расслабления после трудового дня.
Кроме того, стеклянные дверцы шкафов с эффектом тонировки добавили в мебельную композицию элемент современности и функциональности. Плюс они дают возможность видеть содержимое, не открывая дверцы, что облегчает поиск необходимых вещей и придаёт ощущение простора. Кроме того, такой подход позволяет визуально разгрузить пространство, сохраняя его лёгким и не перегруженным.
Биокамин в нише гарнитура стал органичным продолжением дизайна и добавил неповторимый шарм гостиной. Кроме того, размещение камина непосредственно в гарнитуре позволило создать единый композиционный элемент, сделав пространство более живым и привлекательным. Такая обстановка идеальна для встреч с друзьями, семейных вечеров и расслабления после трудового дня.
И да, биокамин стал эффектным дополнением телевизора, расположенного в центре гарнитура. Это решение создало уникальный визуальный центр, в котором уютный огонь и современная техника гармонично сосуществуют: пламя биокамина, мягко мерцающее в окружении мебели, создаёт тёплую и расслабляющую обстановку, в то время как телевизор обеспечивает развлекательный контент.
Гарнитур стал настоящим центром притяжения в гостиной, а биокамин, расположенный в нише, добавил атмосферу тепла и уюта. Подсветка мягко играла на поверхности, создавая волшебное освещение и визуально расширяя пространство.
И что нам очень приятно - наша клиентка была поражена тем, как детали, которые она ранее только представляла, реализовались в жизни с такой точностью.
Наша команда профессионалов предложит вам лучшие интерьерные решения, которые не только преобразят ваше пространство, но и наполнят его комфортом и уютом. Мы знаем, как важна каждая мелочь, и уделим особое внимание качеству материалов и исполнения, чтобы результат превзошёл все ожидания.
Работа с нами - это не просто процесс, это партнёрство, основанное на доверии и внимании к вашим желаниям. Ваш «Шкафулькин».
Работа с нами - это не просто процесс, это партнёрство, основанное на доверии и внимании к вашим желаниям. Ваш «Шкафулькин».