Изготовили мебель в детскую комнату по нашему дизайн-проекту "ДОМИНИК".

Современный распашной шкаф над кроватью и функциональное рабочее место.

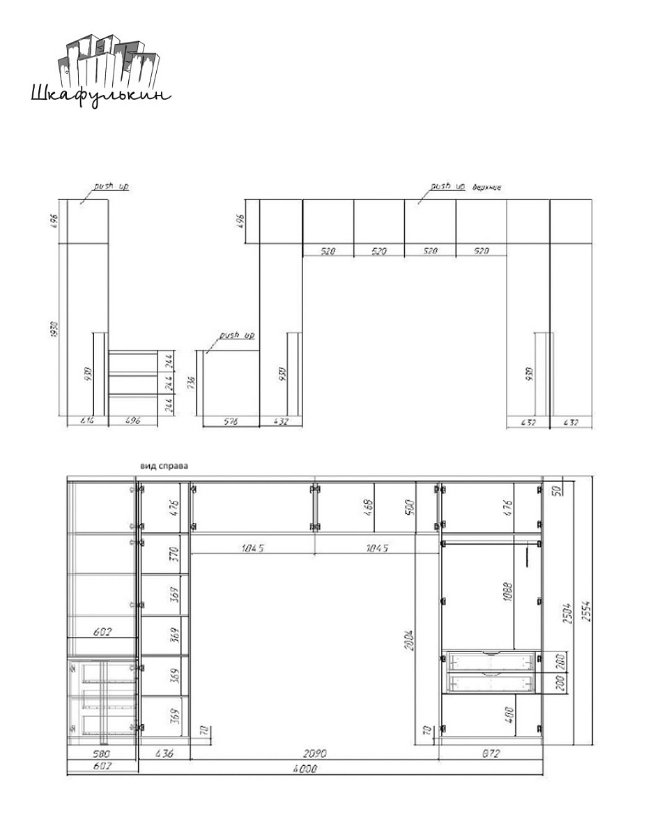
Габаритные размеры: 3012 х 2554 х 4000 мм.
Материал корпуса: открытой секции справа - ЛДСП 16мм, цвет - H 3331 ST 10 Дуб небраска натуральный заказ.
Материал столешницы - ЛДСП 25мм, цвет - H 3331 ST 10 Дуб небраска натуральный заказ.
Материал корпуса остальных модулей - ЛДСП 16мм, цвет - W 1100 ST 9 Белый Альпийский заказ.
Фасад распашной нижний и фасад ящиков - с интегрированной ручкой, крашенный с 1х сторон,
цвет фасада - RAL 9003 матовый, цвет ручки - RAL 1019 матовый.
Фасад распашной верхний, крашенный с 1х сторон, цвет - RAL 9003 матовый, открывание - PUSH UP
Задняя стенка в закрытых шкафах - оргалит Белый.
Задняя стенка в навесных полках - ЛДСП 16мм, цвет - W 1100 ST 9 Белый Альпийский.
Задняя стенка в открытой секции над столом - ЛДСП 16мм, цвет - H 3331 ST 10 Дуб небраска натуральный.
Сборка закрытых изделий - на уголках.
Сборка открытой секции над столом - на евровинты.
Крепеж навесных полок - через заднюю стенку на дюбель.
Петли - GTV с доводчиком - 16 шт, петли GTV без доводчиков для верхнего фасада - 18шт.
Ящики - 5шт, Направляющие GTV шариковые с доводчиком - 5шт.
(в 2х внутренних ящиках - выпил в фасаде).
Штанга овальная - 1шт.
Заглушка кабель-канала, пластиковая, круглая, d=60 мм, светло-коричневая - RTK008-LB - 1шт
Опора для стола, D60, H870+25 мм, хром, 1шт - X4RG 870 CR 1 - 1шт.

Цвет, размеры и наполнение подберём по вашему вкусу и предпочтениям.

13.04.2020 г.

2000+ цветов на выбор

Палитры цветов ЛДСП EGGER, RAL или NCS

Выбор вида наполнения или по вашим требованиям

Остались вопросы?

Позвоните нам и вы получите консультацию, мы ответим на все вопросы, запишем на замер или сделаем расчёт стоимости

Заказ №99145

Вызвать замерщика
Консультация и онлайн-расчёт
Позвонить или написать в МАХ
Доставка, подъем бесплатно
Оплата наличными, онлайн, по счету
Сборка стандартная - 10%
Замер бесплатно
Похожие товары
Детская Бамбини
Детская Бамбини
Детская Доминик
Детская Доминик
Заказ №2319
Заказ №2319
Заказ №2125
Заказ №2125
Вы смотрели
Вызов замерщика

Заполните форму заявки на вызов специалиста, и Вы получите дизайн-проект с точными размерами Вашего изделия и расчёт стоимости.

*Замер производится бесплатно при заказе изделия.

Перезвоните мне

Заполните форму заявки и мы перезвоним вам в ближайшее время.

Получить каталог

Заполните форму заявки и получите каталог

наверх