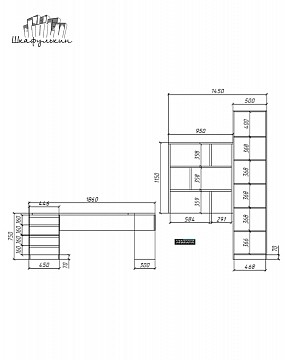
1. Стол и пенал корпусные (справа от окна).

Габаритные размеры изделия: 1860х2420х1450 мм.
Материал корпуса: ЛДСП 16 мм. W1000 ST9 Белый премиум.
Материал столешницы и стеллажа для книг, полок в пенале: ЛДСП 16-25 мм. H 3860 ST9 Клён Сахарный шампань.
1 дверь распашная, 4 фасада ящиков в МДФ 19 мм цвет - RAL 9003 матовый, интегрированные ручки 5 шт. цвет ручек - NCS
S 1040-R40B матовый , петли GTV с доводчиком 5 шт. окрас - Односторонний.
Задняя стенка: оргалит белый в пенале и комоде, ЛДСП 16 мм. H 3860 ST9 на стеллаже для книг.
Крепежная фурнитура: металлические уголки для пенала, эксцентрик VB для открытого стеллажа.
Ящики 4 шт. Направляющие шариковые полного выдвижения, длина MAX.
Заглушка кабель-канала, пластиковая, круглая, d=60 мм, серая RTK008G - 1 шт.

Стоимость: 62 240 руб. ( с учетом скидки 20%).


2.Стол с пеналом корпусные (слева от окна).

Габаритные размеры изделия: 1728х2420х600-357-250 мм.
Материал корпуса: ЛДСП 16 мм. W1000 ST9 Белый премиум (Склад)
Материал столешницы и стеллажа для книг, полок в пенале: ЛДСП 16-25 мм. H 3860 ST9 Клён Сахарный шампань (Заказной)
1 дверь распашная, 4 фасада ящиков в МДФ 19 мм цвет - RAL 9003 матовый, интегрированные ручки 5 шт. цвет ручек - NCS S
1040-R40B матовый , петли GTV с доводчиком 5 шт. окрас - Односторонний.
Задняя стенка: оргалит белый в пенале и комоде, ЛДСП 16 мм. H 3860 ST9 на стеллаже для книг.
Крепежная фурнитура: металлические уголки для пенала, эксцентрик VB для открытого стеллажа.
Ящики 4 шт. Направляющие шариковые полного выдвижения, длина MAX.
Заглушка кабель-канала, пластиковая, круглая, d=60 мм, серая RTK008G - 1 шт.


Стоимость: 49 018 руб. ( с учетом скидки 20%).

29.12.2020 г.

2000+ цветов на выбор

Палитры цветов ЛДСП EGGER, RAL или NCS

Выбор вида наполнения или по вашим требованиям

Остались вопросы?

Позвоните нам и вы получите консультацию, мы ответим на все вопросы, запишем на замер или сделаем расчёт стоимости

Заказ №44333

Вызвать замерщика
Консультация и онлайн-расчёт
Позвонить или написать в МАХ
Доставка, подъем бесплатно
Оплата наличными, онлайн, по счету
Сборка стандартная - 10%
Замер бесплатно
Похожие товары
Детская Доминик
Детская Доминик
Заказ №99145
Заказ №99145
Заказ №2331
Заказ №2331
Заказ №5458
Заказ №5458
Вызов замерщика

Заполните форму заявки на вызов специалиста, и Вы получите дизайн-проект с точными размерами Вашего изделия и расчёт стоимости.

*Замер производится бесплатно при заказе изделия.

Перезвоните мне

Заполните форму заявки и мы перезвоним вам в ближайшее время.

Получить каталог

Заполните форму заявки и получите каталог

наверх
Loading...